Shelf Hotel

EN CH

This project is intended to be the the first contemporary building in the contemporary Xian; want to be an architecture in open dialogue with the rest of the world in a multicultural international architectural language and at the same time strongly attached to the Xian and Chinese traditions.

One main purpose of this design is to follow the needs of different inhabitant without loosing the power of a strong landmark building in the cityscape.
In the common buildings the design is a dam imposed by the architect to the mutating needs of the people and of the developing history of the city. This building wants to be an open matrix to be filled during time with the mutating expectations from a growing culture and society.
This matrix will be the more expensive part of the building that of course is the structure, the only element very difficult to mutate during time.
The objects that will fill the matrix will be built following the different owners identities, functions and real estate needs in a more free and low cost construction methods.

Working 7 years as an architect in china I learned that the construction here follow very strictly and spontaneously the flow of economy without many constrains from regulations, planners and building managements.
Usually architects built objects where the integrity and personality is made by the beauty of the exterior shape and material, shapes and material that have to stay clean and unchanged till the end of the building life. That’s maybe possible in a country where the managements and regulations are very strict and conservative and where probably the economy is very slow creating no development acceleration.
Is not the case of China. Here all architects get frustrated because they can make pictures to their beautiful creations only in the first month life of the building, after that inhabitants start to put unwanted attachments to the building: advertising signs, volume extensions, additional decorations and other additions following their own living or business needs and personalities.
Our design want to make of this dynamic attitude of Chinese culture the real power of the building facade; so that every change during time will give not less but more beauty to the building look and overall concept.

Till the sixties it always have been a dream for architects to create an highrise building where to show the identities and personalities of each inhabitant instead of building an anonymous facade to represent the hundreds of people and business going on inside the building. This can be the right opportunity to realize this dream emphasizing the beauty of the collage aesthetics.
If this was intended to be a design for our parents probably was better to empathize the deep meaning of a unique culture making and object with an unambiguous hidden spirit to be discovered by research and abnegation.
But this actually is a design oriented to the future and to the next generation like all works of responsible architects should be. Observing young people you will notice that they are looking for a life with a a simultaneity of stimuli, they are used to live in an interactive environment with many short experiences instead of a unique deep unequivocal one. They are moving in masses naively, led by a revolutionary instinct towards the collective creation and without regards for personal creativity, I'm sure they are the true prophets, those who will guide us towards an amazing future.
This is a design for them, its a way to attract them speaking their own language. The design will show them a variety of different spaces, different facades, different cultural identities, different experiences. But instead of attracting them in the chaos of the city with its inhuman spaces, we will bring them in a natural and peaceful variety of environments where to learn about themselves, their own culture and the culture from their peers around the world.
This building want to represent their spirit of collective creation and the facade will literally represent this continuous and interactive flow of creations.

One of the biggest problems to solve in this design was how to get rid of the building shadow on the neighbor residence buildings. Chinese regulation is very strict on this and don’t allow more than certain amount of shadow time cover every day. Our building is 100 meters tall and quite large. Thanks to software analysis we discover the critical point to be not too far from the building base where the shadow actually is not moving but is almost permanent all day long. We spontaneously solved this problem by rising the upper part of the volume so that the sun can reach exactly the critical area in need for more light. In this way we opened an opportunity for a large garden to be placed inside this forced gap. This garden will be the heart of the hotel together with the top roof garden where we placed a Chinese courtyard residence traditional typology (siheyuan).
Those green opportunities will be the location for special function related with the exhibition and research about Chinese traditional cultural activities such as calligraphy, tea and taiji together with Buddhist meditation and learning areas. Will be also the place where to grow vegetable and other special food in green houses and water pools.
Restaurants and lounge spaces will be also placed in those green areas and will be visible from the skylights and transparent floors of the below and upper hotel rooms.
The green will be located in small amount in each double floor of the highrise, especially in the gaps between the object/houses that fills the slabs matrix structure.
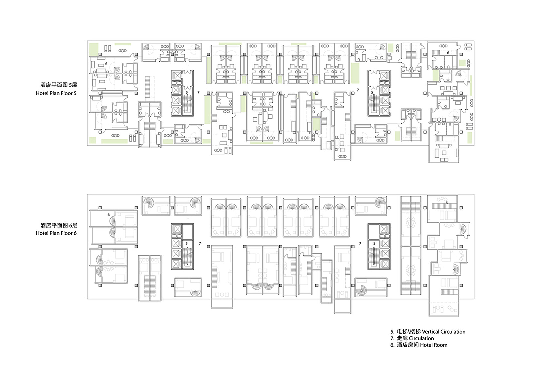
The structure will be composed of pillars and inverted slabs every two floors. In this way is possible to take use of the space between the beams for different purpose like for storage spaces, soil for trees and green areas, pools, mechanical equipment and other functions adaptable to the space under the floor surface.
Most of the houses actually will not be completely autonomous volumes but will be aggregate together and divided only by apparent front gaps so not to waste habitable square meters.
In the ground floor the houses volumes will extend to the front area creating small plazas together with green walls of bamboo. Those will be small spaces in human scale so to be able to make people enjoy open air restaurant areas or outdoor activities.

We believe in this way to create a sustainable project that can last during the years developing its spirit from the ancient Chinese traditions to the future inevitable global culture.

框架酒店

本设计巧妙融合西安传统建筑特色与多元化的现代建筑元素,我们的目标是将其建造成为现代西安的标志性建筑。

普通的建筑设计采用固定的结构,并不能满足经济文化发展之需求,而本设计采用开放式的结构,可随快速发展的经济文化需求而变化。结构设计造价虽相对较高,却是最稳固的部分,无须今后再做改造。而插入式的子建筑易于改建,既满足了功能区划分、客户变动之需,又可节约施工成本。

在来中国工作七年的经验基础上,我了解到中国建筑设计的发展遵循的是经济变化的规律,并未受到来自城市规划与楼房管理的过多限制。通常的建筑设计力图保持外观上的整体感和协调感,造型和建材是不会因为时间而改变的。这种设计方法在经济发展速度较慢、城市规划管理规定严格的国家也许可行,但在中国这样城市面貌日新月异、经济发展迅速的国家却是行不通的。建筑师们往往会沮丧地发现,装修、张贴广告、扩建、及由生活或工作所需产生的附加品这些外部因素,总会迅速破坏建筑原有美感。区别于一般的设计,我们的设计将充分展现充满活力的中国文化,其外观随着时间的推移,只会增强、而非减弱建筑的整体美感。

六十年代以来,设计师们的梦想都是让建筑成为其身份和个性的象征,而不是毫无特色的钢筋水泥。如今,我们可以用如拼贴画般的美学思维实现这一理想。每一个富有责任感的设计师都会认识到,我们的设计是为未来和下一代而创造的。给父辈们的设计,需要集中展现特定的文化寓意及深刻内涵。而年轻人成长于各种新鲜事物相互动与交融的环境中,他们喜欢寻求短暂的刺激体验,而非某一特定的文化熏陶,他们本能地被集体而非个体的创新意识引导。这一心理文化特征是本设计的出发点之一,也是设计面向未来的建筑所必须着重考虑的因素之一。我们的设计将会体现年轻人的个性诉求,包括个性化的空间设计、外形设计、身份认同设计以及体验设计,并创造自然静心的环境,让年轻人愿意去了解自己、自己的国家以及其他优秀的世界文化,而非简单地提供一个嘈杂且非人性化的空间。整栋大楼的设计将体现集体创新精神,建筑外观自然而然将成为个人不断创新的象征。

静心酒店高达百米、占地面积庞大,如何避免日照不足就成为了设计需要解决的核心问题之一。通过日照分析,我们发现建筑底部楼层日照持续时间不足,于是便采用了空中花园的设计,使花园以下建筑部分更靠近持续的日照,从而有效解决了这一问题。空中花园以及顶楼四合院花园的设计是整个设计的核心,既发挥功用解决了日照问题,又与静心设计理念相呼应。

空中花园和楼顶四合院的空间未来可以成为书法室、茶室、太极馆、佛堂和图书室等文化活动场所,也可以容纳菜园、温室和水池等。餐厅和休息室也将会建造于此,若将其上层旅馆房间的地板和下层房间的天花板用透明玻璃建造,可创造出开阔的视域和空间感。每两层将建有由柱子和倒置地板组成的结构设计,次梁之间的空间根据实际需要,可设计为储藏室、水池、机电间、小型植物园等。每个楼层的插入建筑是紧密相连而非完全独立划分的,将使可利用空间最大化。一层建筑延伸到大楼外部,形成竹林广场,可用于室外用餐及其他休闲活动。

本设计预见了未来建筑之需求,并融合了中国传统建筑元素。我们深信它将成为西安标志性建筑,能够长存于历史长河之中。

SHELF HOTEL CREDITS:

Architecture firm: 3GATTI
Chief architect: Francesco Gatti
Project manager: Borja Gómez
Collaborators: Tyler Johnson, Karen Tang, John Jiang, Lisa Liu

Structural engineer:
Jun Gang Sun

Client:
Renhe Estate (Shaanxi Weizhi Group)

Location:
Keji Road, Gaoxin district, Xian, China

Programme:
Five star Hotel, Retail, Restaurants, Spa, Gym, Office, Parking, Green Park

Total area:
50,000 m²

Design period:
December 2011

Materials:
steel and reinforced concrete structure, bamboo, wood, recycled local stones, recycled gray bricks, recycled terracotta bricks, corrugated steel, glass

设计团队:

设计公司:3GATTI
总建筑师:Francesco Gatti
项目经理:Borja Gómez
团队成员: Tyler Johnson, Karen Tang, John Jiang, Lisa Liu

结构工程师:Jun Gang Sun

客户:
陕西伟志集团股份有限公司

地址:
中国陕西西安高新技术开发区科技路

功能区划:
五星级酒店、商业区、餐厅、水疗中心、健身房、办公室、停车场、公园

总面积:
50,000 m²

设计时间:
2011年12月

材料:
钢筋,钢筋混凝土,竹板,树木,再生石块,再生灰砖,再生陶砖,波纹钢,玻璃