Zebar

EN CH IT

A live bar in Shanghai.

This project was born in 2006 when a Singaporean movie director and an ex musician from south of China decided to open a live bar in Shanghai. The budget was very low but the client was incredibly good and open-minded to us.
The schedule was very tight and fortunately they liked immediately one of the first concepts I proposed to them: a caved space formed from of a digital Boolean subtraction of hundreds of slices from an amorphic blob.
The idea looks complex but actually is very simple and was born naturally from the digital 3D modelling environments where me and others enjoy playing with virtual volumes and spaces. The space was subdivided into slices to bring it back from the digital into the real world; to give a real shape to each of the infinite sections of the fluid rhino nurbs surfaces.
In Europe the natural consequence of this kind of design will be giving the digital model to the factory and thanks to the numeric control machines cut easily the huge amount of sections all different from each other.
But we were in China where the work of machines is replaced by the work of low paid humans. Using a projector they placed all the sections we drew on the plasterboards and then cut each of them by hands. The cost was surprisingly low and the sense of guilt towards the workers higher.
The construction was incredibly fast and was almost finished in a couple of months, when we discovered the naïve clients didn’t have any business plan and the site remained closed for 3 years and was finally completed and opened in 2010 when they discovered how to run the business.
This is the story of the ZEBAR, a digital design built into an analogical world.

上海创意酒吧

Zebar 的概念来源于虚拟的数码世界。任何形状、任何颜色、任何声音,在其中一切皆有可能。

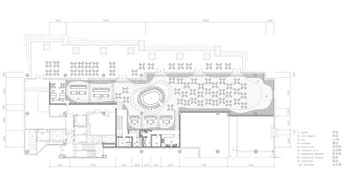
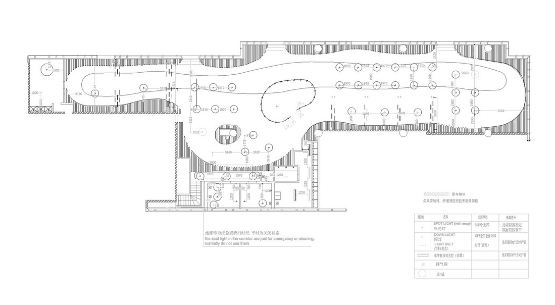
这片空间的设计概念是塑造出如同斑马一样有机形态的洞穴,它运用了一种名为“布尔运算”的 数学原理:从一组片状体阵列集合中用布尔运算减去一个流体形态,形成的反空间用作了酒吧。这一片状体补集的效果形成了酒吧内外之间的过滤层,使来访者感受到一种动态的视效,犹如在立体空间中看到运动中的条形码或斑马毛皮。

Zebar将创造出音乐与斑马条纹内饰结合而成的三维视觉体验空间。

DIGITAL CONCEPT, ANALOGICAL OUTPUT
live bar in Shanghai

Francesco Gatti lavora su un repertorio di operazioni plastiche eterogeneo. Dal 2004 ad oggi ha scolpito oggetti prismatici, tessuto soffitti invisibili, piegato origami, scavato antri e realizzato luoghi anti-gravitazionali.
In ogni progetto la scelta di un’unica soluzione formale è stata accostata alla risoluzione di un tema programmatico, ospitato nella natura stessa della configurazione architettonica. Quando, nel 2006, il progettista riceve l’incarico per la progettazione dello Ze Bar, i due committenti (un regista cinematografico e un musicista) gli richiedono una soluzione flessibile e d’impatto, da realizzare in tempi stretti. Gatti propone uno spazio generato digitalmente, un vuoto realizzato sottraendo un volume bloboidale da una sequenza composta di centinaia di pannelli verticali. La forma della cavità, fatta di contrazioni e alcove, deve contenere e gestire tutte le potenziali funzioni ospitabili all’interno del locale (concerti, pub, disco, intrattenimento, consumazione, proiezioni).
La stessa sagomatura del vuoto prevede una continuità totale tra le superfici verticali e orizzontali, e alcuni eventi specifici (cambi di direzione o insenature) capaci di creare lo spazio necessario alla collocazione delle sedute.
Per ottenere la sequenza di elementi verticali Francesco Gatti impiega dei pannelli in cartongesso, che vengono tagliati in opera secondo le sezioni progressive del disegno digitale. La cavità, così come immaginata dall’architetto, non può essere realizzata all’occidentale, vale a dire sagomando i pannelli con delle macchine a controllo numerico.
Così il progettista, durante la fase del cantiere, proietta in successione le sagome dei pannelli da tagliare, ottenendo un effetto simile a quello immaginato digitalmente, ma realizzato a mano.

Testo di Giampiero Sanguigni

ZEBAR CREDITS:

Architecture firm: 3GATTI
Chief architect: Francesco Gatti
Project manager: Summer Nie
Collaborators:
Nicole Ni, Chen Qiuju, Kelly Han, Chen Han Yi, Lu Cheng Yuan, Jessie Zhengxin, Ronghui Chen, Vivian Husiyue, Aurgho Jyoti

Programme:
Bar, restaurant, live music stage area, lounge area, dining area, kitchen, toilets.

Contractor: Eric Liang

Client:
Jim Dandy

Location:
KIC plaza, Chuangzhi Tiandi, Songhu road, Shanghai

Total area:
569 m²

Design period:
autumn 2006

Construction period:
spring 2008

Bar opening:
november 2010

Materials:
white epoxy, black concrete, plywood and plasterboard

Photographer:
Daniele Mattioli

ZEBAR CREDITS:

Architecture firm: 3GATTI
Chief architect: Francesco Gatti
Project manager: Summer Nie
Collaborators:
Nicole Ni, Chen Qiuju, Kelly Han, Chen Han Yi, Lu Cheng Yuan, Jessie Zhengxin, Ronghui Chen, Vivian Husiyue, Aurgho Jyoti

Programme:
Bar, restaurant, live music stage area, lounge area, dining area, kitchen, toilets.

Contractor: Eric Liang

Client:
Jim Dandy

Location:
KIC plaza, Chuangzhi Tiandi, Songhu road, Shanghai

Total area:
569 m²

Design period:
autumn 2006

Construction period:
spring 2008

Bar opening:
november 2010

Materials:
white epoxy, black concrete, plywood and plasterboard

Photographer:
Daniele Mattioli

ZEBAR CREDITS:

Architecture firm: 3GATTI
Chief architect: Francesco Gatti
Project manager: Summer Nie
Collaborators:
Nicole Ni, Chen Qiuju, Kelly Han, Chen Han Yi, Lu Cheng Yuan, Jessie Zhengxin, Ronghui Chen, Vivian Husiyue, Aurgho Jyoti

Programme:
Bar, restaurant, live music stage area, lounge area, dining area, kitchen, toilets.

Contractor: Eric Liang

Client:
Jim Dandy

Location:
KIC plaza, Chuangzhi Tiandi, Songhu road, Shanghai

Total area:
569 m²

Design period:
autumn 2006

Construction period:
spring 2008

Bar opening:
november 2010

Materials:
white epoxy, black concrete, plywood and plasterboard

Photographer:
Daniele Mattioli