Red Object

EN CH IT

Conversion of an ex factory into an office building

Red and black are historically avant-garde colours. In the last century they represented bold uncompromising ideologies and artistic movements that combined ethical and cultural beliefs with innovative forms of expression. These were the colours that represented a certain turbulence or tension towards the essence of objects whereas white represented a vacuum or void in which to collocate their significance or meaning.
A blank sheet of paper on which nothing has yet been written is white; once there is a text, the colour red is used to underline words.

In a similar way and in a contemporary setting Francesco Gatti associates colours to the objects he designs.

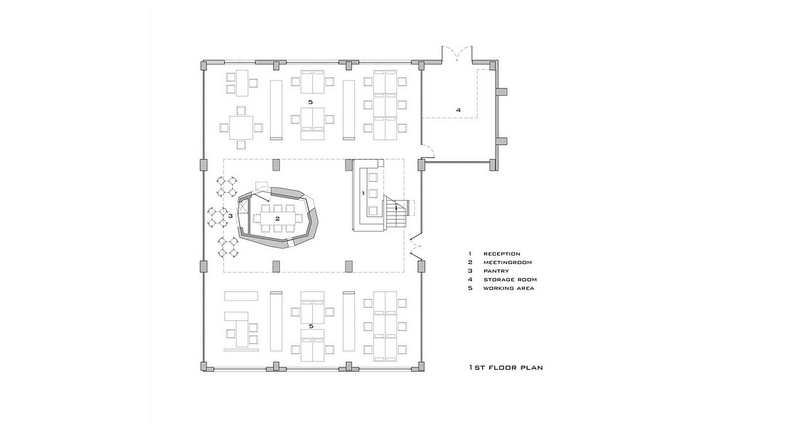
To convert an ex factory in the centre of Shanghai, the Italian architect was given certain criteria to follow and final requirements to be met: there should be premises to be used as offices, versatile spaces, meeting rooms, a reception and a café.

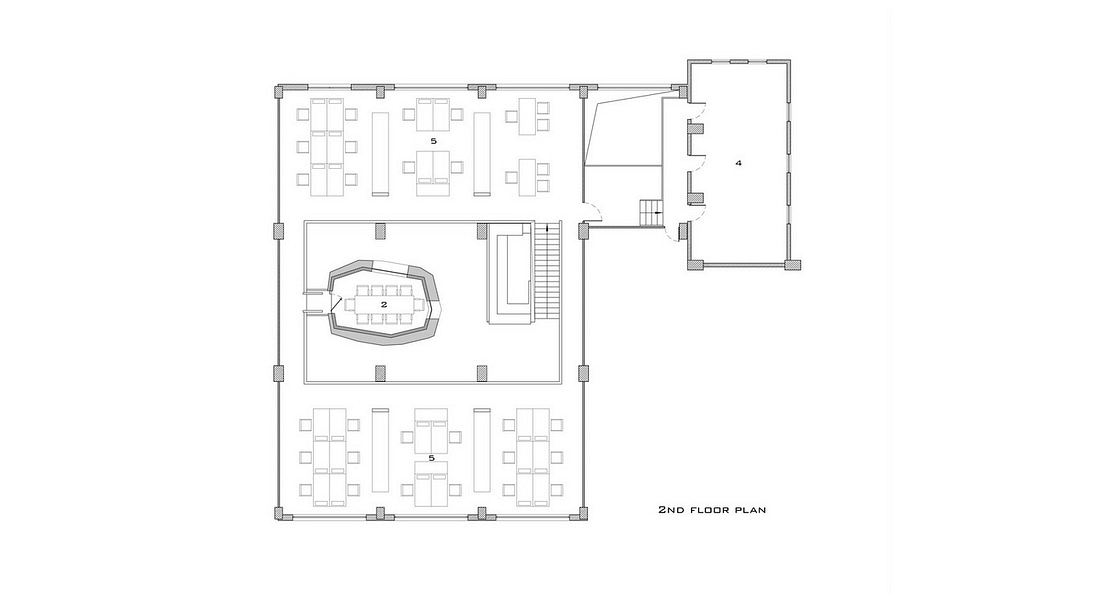
Taking into account the height of the rooms, it was decided to divide the upper space into two mezzanine floors joined together by two bridge-corridors. In this way a neutral central void was created. The use of white resin for the floors and epoxy applied directly onto the concrete makes the double height a perfect setting for the utility functions, all housed among objects resembling sculptures.

A faceted red object contains two meeting rooms and a kitchen in its lower level. It is separated from the floor by an illuminated slice of void and it reflects onto the white resin. Other less startling sculptures, are the reception desk which lies in the bend of the banister of the stairs and another long belt-like surface which can be used as a working surface which leads the way into the central area.

Text: Giampiero Sanguigni

红色物语

旧厂房成为新办公楼的改造方案

红色和黑色是具有历史意义的先锋颜色。在上个世纪它们代表着大胆不羁的意识形态和由革新方式表达的道德与文化信念所构成的艺术运动。这是那种能代表某种针对对象本质引发的潮流和张力的颜色,而白色代表用来罗列它们意义和内涵的虚无空间。如同白纸一张,毫无墨迹可寻;一旦染了文章,红色便是下划线。

以同样的手法,盖天柯以一种现代的方式为他的设计对象赋了颜色。

为了改造上海市中心的这处旧厂房,这位意大利建筑师得到了一些规范和最终需要满足的要求:必须有办公空间、多功能空间、会议室、接待处和一个咖啡屋。

根据房间的高度,决定将上部空间分割出来作为隔层,由两根桥廊连接。这样就形成了一个中央灰空间。用于地面的白色树脂涂料和直接涂于混凝土表面的环氧树脂涂料完美的表达了两层楼高度的实用功能,所有以内的构造都宛如雕塑。

红色多面体构筑物的底层包括两个会议室和一个厨房。它通过一层自发光的镂空层与地面分开,并能反射到白色的涂料上。另一些不那么触目的雕塑,包括坐落在楼梯弯曲扶栏内的接待处和另一条可以用作办公界面并引入中央区域的长条带状面板。

文:Giampiero Sanguigni

Conversione di una ex-fabbrica in un edificio per uffici

Il rosso e il nero sono i colori delle avanguardie storiche. Nel secolo scorso hanno rappresentano ideologie e movimenti artistici privi di compromessi, capaci di combinare motivazioni etiche e culturali con forme di espressione innovative. Con questi colori è stata rappresentata la tensione verso l’essenza delle cose, accostandoli al bianco: il vuoto nel quale collocare segni e significati. Il foglio di carta su cui bisognava ancora scrivere era bianco, mentre il rosso, una volta steso il testo, sottolineava le parole e gli errori.
In un modo analogo e contemporaneo Francesco Gatti associa i colori agli oggetti che disegna.
Per questo intervento di conversione di una ex fabbrica nel centro di Shanghai, sono stati richiesti all’architetto italiano una serie di funzioni: locali da destinare a uffici, spazi aperti e flessibili per l’organizzazione di mostre e eventi, due sale riunioni, una reception, un bar, alcuni magazzini e dei locali tecnici.
Considerata l’altezza degli interni, la scelta è stata quella di dividere lo spazio superiore in due mezzanini collegati da due ponti-corridoio. In questo modo si è creato un vuoto centrale, artificiale e neutro. L’uso di resina bianca per la pavimentazione e dell’epoxy stesa direttamente sul cemento a vista ha reso la doppia altezza una scenografia perfetta, nella quale collocare alcune delle funzioni, all’interno di oggetti-scultura.
Un volume rosso sfaccettato ospita due sale riunioni e la cucina del bar nel piano inferiore. L’oggetto, staccato da terra da uno scuro illuminato, si riflette sulla resina. Altre sculture meno evidenti, ma attentamente rifinite, sono il reception desk, che nasce dalla piega della balaustra della scala e che si intreccia con un altro nastro che genera un piano d’appoggio ma anche la soglia di accesso all’area centrale.


Text: Giampiero Sanguigni

RED OBJECT CREDITS:

Programme:
Two storeys office events open spaces, two meeting rooms, reception area, bar, special dress storage-exhibition room, storage room, server room.

Architecture firm: 3GATTI
Chief architect: Francesco Gatti
Project manager: Ingrid Pu
Collaborators:
Paola Riceci, Jessie Zheng, Candy Zhang, Vivian Husiyue, Ben Hou, Peter Ye, Sunny Wang, Chen Han Yi, Robin Feng

Contractor: K2Lab

Engineer:
Jachy Yan

Client:
Italia Servizi s.r.l.

Location:
Jing An district, Shanghai, China.

Total area:
708 m²

Design period:
6/2006

Construction period:
7/2006 - 8/2006

Materials:
ground floor: white resin
mezzanine: steel structure, concrete floor with transparent epoxy
red object: concrete and brick structure, wooden secondary structure, plasterboard skin with plexiglass windows
reception desk: steel structure, wooden skin with grey piano painting

Photographer:
Masato Kawano (Nácasa & Partners Inc)

红色物语附录

项目:
两层开放空间办公室、两个会议室、接待处、吧台、特殊服装储藏室——展厅、储藏室、服务房。

建筑师:3GATTI建筑事务所
总建筑师:Francesco Gatti 盖天柯
项目经理:蒲晓音
合作者:Paola Riceci, 郑欣, Candy Zhang, 胡斯月,俞闻候, 叶晓东, 王涛, 陈涵溢, 冯磊

施工方:K2Lab

结构工程师:Jachy Yan

投资商:Italia Servizi s.r.l.

地址:中国,上海,静安区

总面积:708 m²

设计日期:2006年6月

施工日期:2006年7月——2006年8月


材料:
底层:白色树脂涂料
隔层:钢构、混凝土地面涂以透明环氧树脂涂料
红色构筑物:混凝土和砖构、二层木构、石膏板表面、有机玻璃窗
接待办公桌:钢构、木面灰色钢琴涂料


摄影师:
Masato Kawano (Nácasa & Partners 公司)

RED OBJECT CREDITS:

Programme:
Two storeys office events open spaces, two meeting rooms, reception area, bar, special dress storage-exhibition room, storage room, server room.

Architect:
3GATTI.COM ARCHITECTURE STUDIO
Chief architect: Francesco Gatti
Project manager: Ingrid Pu
Collaborators:
Paola Riceci, Jessie Zheng, Candy Zhang, Vivian Husiyue, Ben Hou, Peter Ye, Sunny Wang, Chen Han Yi, Robin Feng

Contractor: K2Lab

Engineer:
Jachy Yan

Client:
Italia Servizi s.r.l.

Location:
Jing An district, Shanghai, China.

Total area:
708 m²

Design period:
6/2006

Construction period:
7/2006 - 8/2006

Materials:
ground floor: white resin
mezzanine: steel structure, concrete floor with transparent epoxy
red object: concrete and brick structure, wooden secondary structure, plasterboard skin with plexiglass windows
reception desk: steel structure, wooden skin with grey piano painting

Photographer:
Masato Kawano (Nácasa & Partners Inc)